あなたがのぞむ住まい I’m home

HOME - お知らせ - イベント - 独身でも建てられる!「minimalな住宅」平屋1LDK・15坪+ロフトのご提案

お知らせNews

アイムホームが叶える
あなたがのぞむ住まい

イベント 2026.03.30

独身でも建てられる!「minimalな住宅」平屋1LDK・15坪+ロフトのご提案

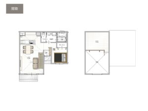
以前ご紹介した15坪平屋プランにロフトを追加しました。

収納スペースとしてはもちろん、趣味の部屋や来客用の寝室として利用される方も増えてきております。

1階の面積を増やすよりロフトの方がご予算も抑えられ、LDKの天井も高く開放的にデザインできます。

平屋の建築をお考えの方で、あと1部屋欲しいという方はロフトをご検討してみてはいかがでしょうか。

ほかにもプランをご用意しております。ご興味がある方はお気軽にご連絡ください。

お知らせ一覧に戻る